X

Grayson Cottage

Square Feet 3,593
Bed Rooms 4
Bath 3

Info

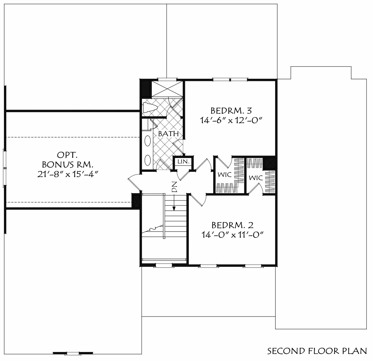
Stately modern Farmhouse home with 4 bedrooms, 3 baths, and 2 bonus rooms. Expansive open concept with 10 ft ceilings down with 8 ft doors. Large kitchen with 9 ft island, double ovens, gas cooktop, and walk in pantry. Oversized great room with vaulted ceilings lots of natural light. Master suite features raised ceiling, double sinks, large walk in shower, split walk in closet, and direct access to laundry room. Split to other side of home is bedroom and full bath. Open stairway leads to 2 large bedrooms, full bath, 2 bonus rooms, and walk in attic.