X

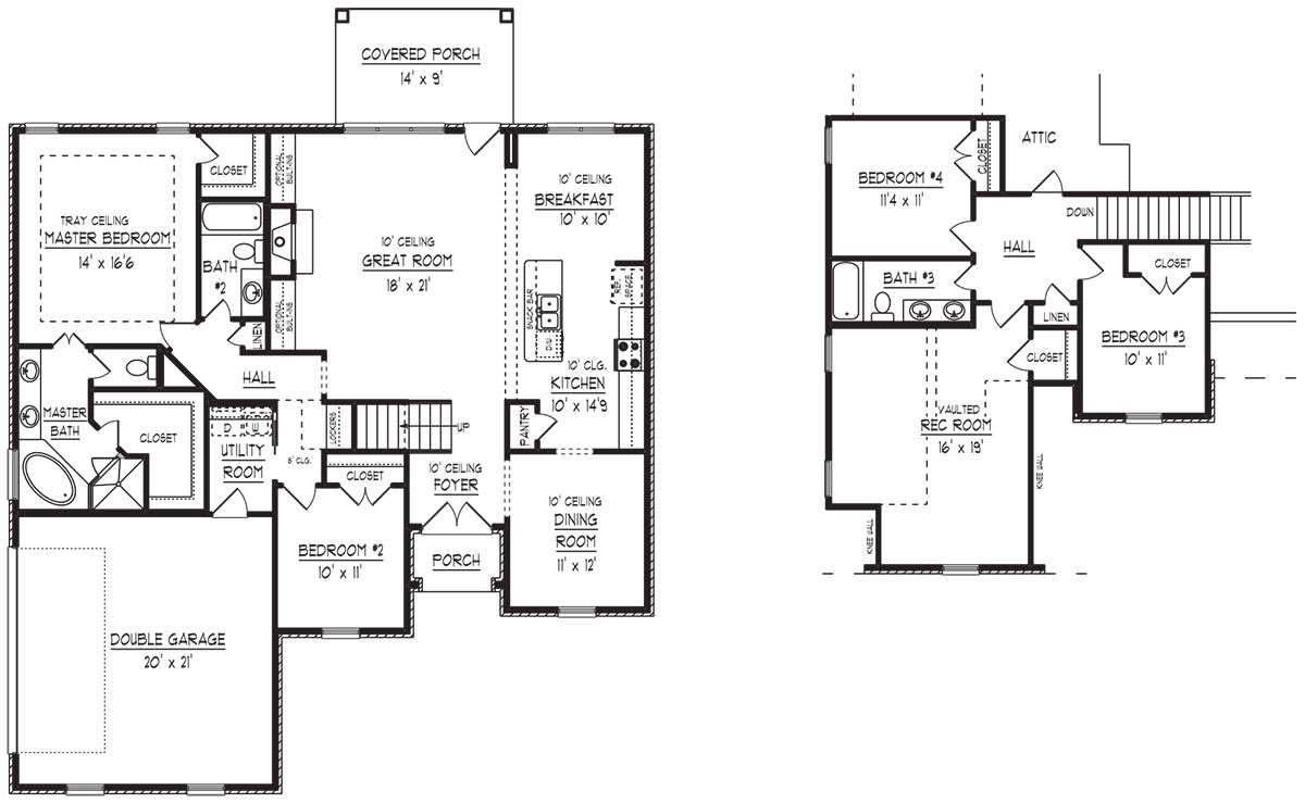
Augusta

Square Feet 2,582
Bed Rooms 4
Bath 3

Info

Wonderful 4 bedroom, 3 bath home with large bonus room. Open concept with kitchen and great room together in one space. Several kitchen configurations available to meet you specific needs with a dining room just off the entry. Fireplace in great room has space on each side for cabinets or shelving. Master suite features 2 walk in closets, double sinks, free standing tub, and corner walk in shower. Another bedroom, full bath, and mudroom complete the downstairs. Upstairs are two more bedrooms, large full bath, walk in attic, and oversized bonus room. Enjoying your evenings under a large covered back porch. Choose from several different elevations.